Дом по адресу Новосибирск, Луговской переулок, за 990000 р.

Адрес Новосибирск, Луговской переулок
Цена 990 000 р.
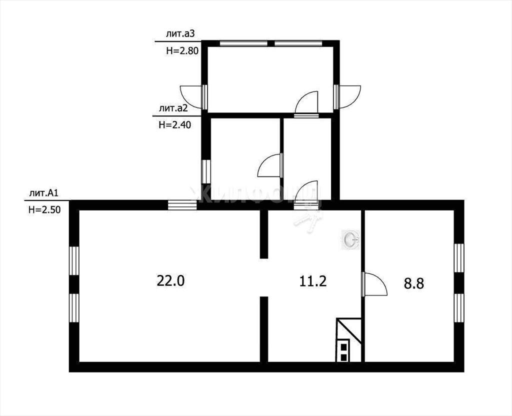
Площадь дома 117,3 м2, участка 1 м2
1/2 дома по ул. Луговской. Общей площадью: 117.30 кв.м. ЛУЧШАЯ ЦЕНА! для Части ДОМА В ОКТЯБРЬСКОМ РАЙОНЕ! ЧАСТЬ дома(1.3 равная по площади 40 м. кв) с отдельным входом рядом с Педагогическим университетом по самой доступной цене. Нижний этаж двухэтажного дома. Стены дома -шлаколитые . Отопление печное. Просторная жилая комната объединена с кухней , отдельная спальная комната, прихожая и хозяйственная пристройка имеют отдельный вход с улицы. Состояние помещений жилое. Ухоженный земельный участок небольшой площади. Баня в которой потребуется перестелить пол . Сарай. Хорошие соседи. Вся развитая инфраструктура ул. Выборной в вашем распоряжении. Остановка транспорта Инюшенский бор в ста метрах от дома. Покупка подходит , под материнский капитал и наличные. Звоните. Возможен обмен на вашу недвижимость. Возможна продажа в рассрочку. При звонке, пожалуйста, сообщите номер варианта - JV008054152711
Объявление № 21920626
Дата подачи:
18 апреля 2025 г. 19:22
Дата обновления:
18 апреля 2025 г. 19:22
Просмотров 24 Хотите продать быстрее?

Продавец
Владимир Сергеевич
Показать номер телефона
Пожаловаться
Комментарии:
Добавить